5 locali in vendita

Genova, Via Giovanni Battista Monti - Sampierdarena
€ 139.000
7 locali 7 locali
126 Mq 126 Mq
1 bagno 1 bagno

5 locali in vendita

Genova, Via Giovanni Battista Monti - Sampierdarena

Descrizione annuncio

Nel cuore di Sampierdarena, a Genova, proponiamo un ampio appartamento in vendita, ideale per chi cerca spazio e comodità.

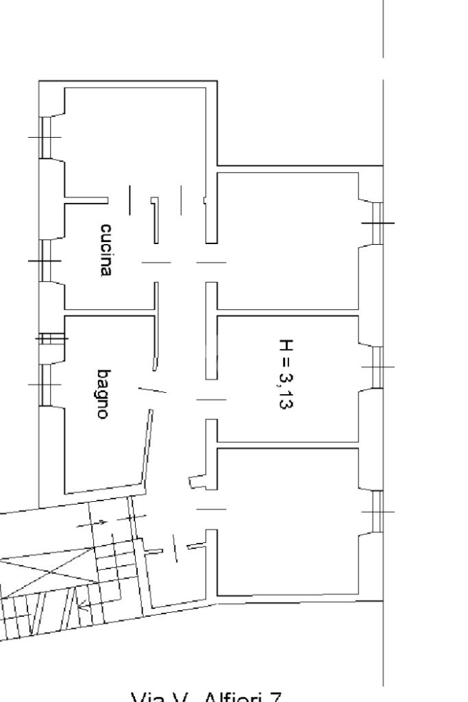
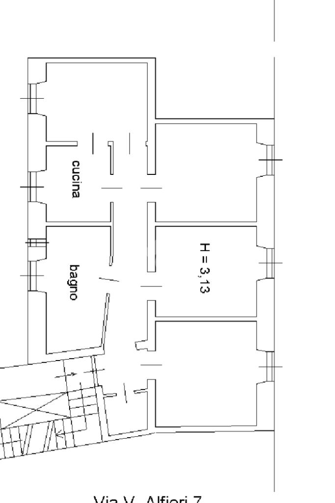
Con una superficie di 126 mq, questa proprietà offre cinque locali ben distribuiti, perfetti per accogliere una famiglia numerosa o per chi desidera ambienti versatili.

L'alloggio è composto da ingresso, corridoio, bagno ampio dotato di box doccia, sala da pranzo aperta sulla cucina, tre camere da letto matrimoniali e dispensa.

La porta di accesso è blindata e tutte le finestre sono in doppio vetro in alluminio dotate di persiane.

Il riscaldamento è autonomo con bassi costi di gestione e l'alloggio ha la predisposizione per l'aria condizionata.

La posizione è uno dei punti di forza principali: a pochi passi dai principali mezzi di trasporto e dai servizi essenziali, garantisce un facile accesso a tutto ciò di cui si ha bisogno quotidianamente. La zona è ben servita da negozi, scuole e aree verdi, rendendo questa soluzione abitativa particolarmente interessante per chi desidera vivere in un contesto urbano senza rinunciare alla comodità.

Mostra tutto

Nelle vicinanze

Trasporto pubblico Trasporto pubblico
Brin
Brin
1,7 Km
Dinegro
Dinegro
1,8 Km
stazione di Genova Sampierdarena
stazione di Genova Sampierdarena
210 m
stazione di Genova Rivarolo
stazione di Genova Rivarolo
2,6 Km
Cantore 1/Montano
Cantore 1/Montano
40 m
Ricariche auto elettriche Ricariche auto elettriche
Genova Sampierdarena FS | EnelX
90 m
Eneldrive Centro Commerciale Fiumara
370 m
Genova San Pier d'Arena | EnelX
400 m
Genova Cantore | EnelX
440 m
Genova Bombrini | EnelX
460 m
Scuole Scuole
Istituto Tecnico Statale Luigi Einaudi
190 m
Scuola Media statale San Pier d'Arena
280 m
Scuola Media statale San Pier Darena
300 m
Scuola Media Statale N. Barabino
330 m
Liceo Classico e Linguistico Statale Giuseppe Mazzini
450 m
Farmacia Farmacia
Farmacia Rolando
70 m
Farmacia Popolare Sociale
120 m
Farmacia San Gaetano
250 m
Farmacia Modena
260 m
Farmacia Italiani
270 m
Ospedali Ospedali
Ospedale Villa Scassi
640 m
Supermercati Supermercati
PuntoSMA
100 m
iN's
150 m
Ekom
160 m
Carrefour Express
160 m
Dico
240 m
Negozi Negozi
Crumbit la focacceria
30 m
Negozi
140 m
Visual Think
240 m
Panificio Piombi
290 m
OVS
530 m
Bar Bar
Caffè Maggiora
50 m
Bar
160 m
Debby's Bar
160 m
Virgo Club
180 m
Bar Roma
200 m
Ristoranti Ristoranti
Reasturante Marisqueria Kike
130 m
La Legnaia
150 m
Ristorante cinese
180 m
Trattoria Pizzeria La Marinella
200 m
Ristorante La Botte
260 m
Mostra tutto

Caratteristiche

Rif.:
61118010
Piano:
1 di 6 con ascensore (Piano basso)
Camere da letto:
3
Arredamento:
Assente
Condizionamento:
Predisposizione impianto
Ascensore:
Mostra tutto
Prezzo Prezzo
€ 139.000
Rata mutuo Rata mutuo
€ 659 / mese
Spese annue Spese annue
€ 1.000
Proponi il tuo prezzoProponi il tuo prezzo
Immobile valutato con T·Valuta

Classe Energetica

G
G
G
G
G
G
G
G
G
Riscaldamento:
Autonomo
Tipo impianto:
A radiatori
Tipo alimentazione:
Metano

Ti interessa visionare l'immobile?

Fissa un appuntamento  Fissa un appuntamento

Richiedi informazioni

Clicca su Leggi per aprire l'informativa
* Questi campi sono obbligatori

Calcola il tuo mutuo

Semplice e senza impegno
Anticipo

( % )
Mutuo

( % )

pochi semplici passi

inserisci i tuoi dati
Questionario completato
Grazie per aver richiesto un appuntamento senza impegno con un nostro Consulente del Credito e Assicurativo.

Hai inserito correttamente tutti i dati necessari e a breve riceverai una e-mail con un link da convalidare per inviare i tuoi dati.
Affiliato
Mgl Immobiliare Snc
Via Carlo Rolando, 10R 16151 Genova (GE)
Via Carlo Rolando, 10R 16151 Genova (GE)
Zona: Sampierdarena
Mostra su mappa
Affiliato
Mgl Immobiliare Snc
Via Carlo Rolando, 10R 16151 Genova (GE)

2026 Tecnocasa Franchising S.p.A. - P. IVA 08365160152 - Via Monte Bianco 60/A 20089 Rozzano (MI). Ogni agenzia ha un proprio titolare ed è autonoma. Privacy policy | Policy utilizzo | Cookie policy