Quadrilocale in vendita

Genova, Via la Spezia - Sampierdarena
€ 129.000
6 locali 6 locali
101 Mq 101 Mq
1 bagno 1 bagno

Quadrilocale in vendita

Genova, Via la Spezia - Sampierdarena

Descrizione annuncio

Nel cuore di Sampierdarena, a Genova, è disponibile un appartamento in vendita che unisce comfort e funzionalità, in una delle vie piu richieste del quartiere.

Situato in un edificio costruto nel 1958 avente la comodita di avere due accessi, uno da Via La Spezia 10 e uno da Corso Ferdinando Magellano 18 dotato di due ascensori.

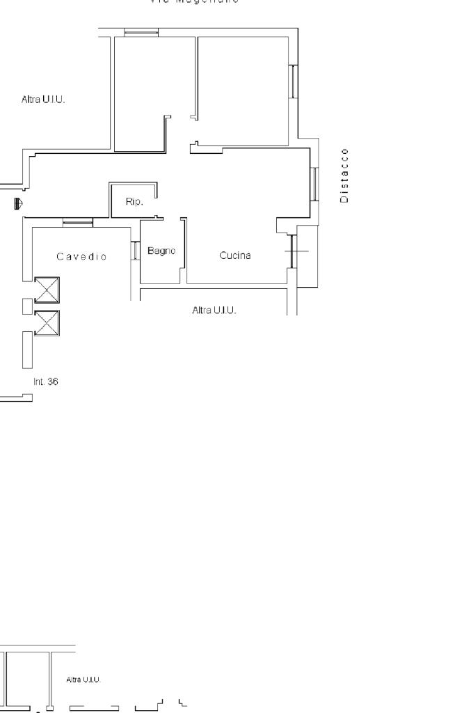
La proprietà, di 101 mq, totalmente ristrutturata recentemente, offre un ambiente moderno e accogliente.

L'appartamento è composto da ampio ingresso con finestra, open space che integra soggiorno e cucina, ideale per chi ama gli spazi aperti e luminosi e da cui si accede al balcone, dispensa, bagno dotato di box doccia e due camere da letto matrimoniali.

La presenza del balcone aggiunge un ulteriore spazio vivibile, perfetto per momenti di relax all'aperto.

La disposizione degli ambienti è studiata per ottimizzare ogni metro quadrato, rendendo questa soluzione abitativa adatta a diverse esigenze.

La porta di accesso è blindata e tutte le finestre sono in doppio vetro in alluminio dotate di tapparelle manuali.

Il riscaldamento è centralizzato dotato di valvole termostatiche con contabibilizzatori di calorie.

Completa la proprieta la cantina di pertinenza al primo piano del palazzo.

Un'opportunità da considerare per chi cerca una casa pronta da vivere in una zona ben servita e soprattutto luminosa.

Mostra tutto

Nelle vicinanze

Trasporto pubblico Trasporto pubblico
Dinegro
Dinegro
1,4 Km
Brin
Brin
1,6 Km
stazione di Genova Sampierdarena
stazione di Genova Sampierdarena
680 m
stazione di Genova Piazza Principe
stazione di Genova Piazza Principe
2,1 Km
Magellano 2 / Scalinata
Magellano 2 / Scalinata
40 m
Ricariche auto elettriche Ricariche auto elettriche
Genova Cantore | EnelX
200 m
Genova Scassi | EnelX
250 m
Genova San Pier d'Arena | EnelX
530 m
Genova Sampierdarena FS | EnelX
560 m
Genova De Marini | EnelX
720 m
Scuole Scuole
Scuola elementare di Stato Emilio Salgari
90 m
Scuola Media Statale N. Barabino
220 m
Liceo Statale Piero Gobetti
430 m
Istituto Tecnico Statale Luigi Einaudi
480 m
Scuola elementare Walt Disney
550 m
Farmacia Farmacia
Farmacia Comunale
130 m
Farmacia Gioberti
270 m
Farmacia Italiani
300 m
Farmacia Cantore
300 m
Farmacia Buranello
400 m
Ospedali Ospedali
Ospedale Villa Scassi
210 m
Supermercati Supermercati
PAM local
180 m
In's
190 m
Carrefour Express
230 m
Doro Centry
250 m
Doro
330 m
Negozi Negozi
Negozi
270 m
Panificio Cantore
300 m
Visual Think
330 m
Panificio Pasticceria Gaggero
480 m
Crumbit la focacceria
500 m
Bar Bar
Bar Kent
60 m
Carioca Bar
220 m
Bar
270 m
Virgo Club
440 m
Bambocchia Cafè
450 m
Ristoranti Ristoranti
Osteria dei Cuxin
250 m
Pizzeria Trattoria Le Palme
280 m
Ristorante cinese
370 m
Reasturante Marisqueria Kike
400 m
La Legnaia
410 m
Mostra tutto

Caratteristiche

Rif.:
61136422
Piano:
9 di 12 con ascensore (Piano alto)
Balconi:
1
Camere da letto:
2
Arredamento:
Assente
Condizionamento:
Assente
Mostra tutto
Prezzo Prezzo
€ 129.000
Rata mutuo Rata mutuo
€ 609 / mese
Spese annue Spese annue
€ 2.400
Proponi il tuo prezzoProponi il tuo prezzo
Immobile valutato con T·Valuta

Classe Energetica

E
E
E
E
E
E
E
E
E
Anno di costruzione:
1958
Riscaldamento:
Centralizzato
Tipo impianto:
A radiatori
Tipo alimentazione:
Metano

Ti interessa visionare l'immobile?

Fissa un appuntamento  Fissa un appuntamento

Richiedi informazioni

Clicca su Leggi per aprire l'informativa
* Questi campi sono obbligatori

Calcola il tuo mutuo

Semplice e senza impegno
Anticipo

( % )
Mutuo

( % )

pochi semplici passi

inserisci i tuoi dati
Questionario completato
Grazie per aver richiesto un appuntamento senza impegno con un nostro Consulente del Credito e Assicurativo.

Hai inserito correttamente tutti i dati necessari e a breve riceverai una e-mail con un link da convalidare per inviare i tuoi dati.
Affiliato
Mgl Immobiliare Snc
Via Carlo Rolando, 10R 16151 Genova (GE)
Via Carlo Rolando, 10R 16151 Genova (GE)
Zona: Sampierdarena
Mostra su mappa
Affiliato
Mgl Immobiliare Snc
Via Carlo Rolando, 10R 16151 Genova (GE)

2025 Tecnocasa Franchising S.p.A. - P. IVA 08365160152 - Via Monte Bianco 60/A 20089 Rozzano (MI). Ogni agenzia ha un proprio titolare ed è autonoma. Privacy policy | Policy utilizzo | Cookie policy