Multilocale in vendita

Genova, Corso Luigi Andrea Martinetti - Sampierdarena
€ 159.000
10 locali 10 locali
136 Mq 136 Mq
2 bagni 2 bagni

Multilocale in vendita

Genova, Corso Luigi Andrea Martinetti - Sampierdarena

Descrizione annuncio

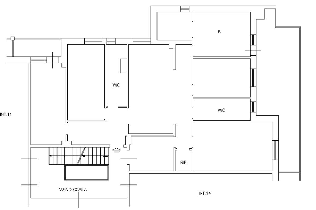
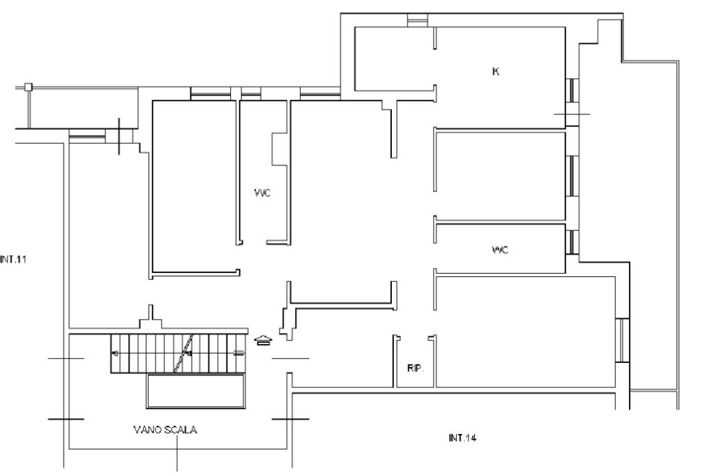
Nel cuore di Sampierdarena, a Genova, si propone in vendita un ampio multilocale di 136 mq, situato al primo piano di un edificio costruito nel 1963 dotato di ascensore.

La disposizione interna comprende ingresso, 4 camere da letto, balcone, ampio soggiorno, studio, dispensa, 2 bagni, cucina, tinello e ampia loggia al piano.

La porta di accesso è blindata e tutte le finestre sono in doppio vetro in alluminio dotate di tapparelle manuali.

Il riscaldamento è centralizzato dotato di valvole termostatiche e contabilizzatori di calorie.

Il terrazzino al piano, dotato sia di acqua che di luce, è ideale per trascorre pranzi e cena in compagnia di parenti e amici.

La posizione strategica consente di usufruire di tutti i servizi che la zona offre, rendendo questa proposta un'opportunità interessante per chi desidera vivere in un contesto urbano dinamico.

Mostra tutto

Nelle vicinanze

Trasporto pubblico Trasporto pubblico
Brin
Brin
1,2 Km
Dinegro
Dinegro
1,4 Km
stazione di Genova Sampierdarena
stazione di Genova Sampierdarena
810 m
stazione di Genova Piazza Principe
stazione di Genova Piazza Principe
2,1 Km
Martinetti 4 / Poste
Martinetti 4 / Poste
70 m
Ricariche auto elettriche Ricariche auto elettriche
Genova Scassi | EnelX
640 m
Genova Cantore | EnelX
680 m
Genova Sampierdarena FS | EnelX
760 m
Genova San Pier d'Arena | EnelX
950 m
Eneldrive Centro Commerciale Fiumara
1,0 Km
Scuole Scuole
Scuole
480 m
Istituto Tecnico Statale Luigi Einaudi
540 m
Scuola elementare di Stato Emilio Salgari
560 m
Scuola Media Statale N. Barabino
640 m
Scuola elementare Walt Disney
650 m
Farmacia Farmacia
Farmacia Comunale
360 m
Farmacia Rolando
620 m
Farmacia San Gaetano
650 m
Farmacia Italiani
700 m
Farmacia San Martino
700 m
Ospedali Ospedali
Ospedale Villa Scassi
360 m
Supermercati Supermercati
Carrefour Express
40 m
Doro Centry
240 m
Dico
460 m
Doro
480 m
iN's
580 m
Negozi Negozi
Negozi
520 m
Crumbit la focacceria
690 m
Visual Think
710 m
Panificio Cantore
760 m
Panificio Pasticceria Gaggero
940 m
Bar Bar
Bar Kent
530 m
Bar
580 m
Carioca Bar
700 m
Caffè Maggiora
710 m
Virgo Club
780 m
Ristoranti Ristoranti
Osteria dei Cuxin
240 m
La Legnaia
540 m
Pizzeria Trattoria Le Palme
650 m
Pizzeria Sa Roda
700 m
Reasturante Marisqueria Kike
700 m
Mostra tutto

Caratteristiche

Rif.:
61202553
Piano:
1 di 6 con ascensore (Piano basso)
Balconi:
1
Terrazzi:
1
Camere da letto:
4
Arredamento:
Assente
Mostra tutto
Prezzo Prezzo
€ 159.000
Rata mutuo Rata mutuo
€ 753 / mese
Spese annue Spese annue
€ 2.500
Proponi il tuo prezzoProponi il tuo prezzo
Immobile valutato con T·Valuta

Classe Energetica

F
F
F
F
F
F
F
F
F
EP globale non rinnovabile:
112.13 kW h/m² anno
EP globale rinnovabile:
3.37 kW h/m² anno
EP invernale del fabbricato:
EP estiva del fabbricato:
Anno di costruzione:
1963
Riscaldamento:
Centralizzato
Tipo impianto:
A radiatori
Tipo alimentazione:
Metano

Ti interessa visionare l'immobile?

Fissa un appuntamento  Fissa un appuntamento

Richiedi informazioni

Clicca su Leggi per aprire l'informativa
* Questi campi sono obbligatori

Calcola il tuo mutuo

Semplice e senza impegno
Anticipo

( % )
Mutuo

( % )

pochi semplici passi

inserisci i tuoi dati
Questionario completato
Grazie per aver richiesto un appuntamento senza impegno con un nostro Consulente del Credito e Assicurativo.

Hai inserito correttamente tutti i dati necessari e a breve riceverai una e-mail con un link da convalidare per inviare i tuoi dati.
Affiliato
Mgl Immobiliare Snc
Via Carlo Rolando, 10R 16151 Genova (GE)
Via Carlo Rolando, 10R 16151 Genova (GE)
Zona: Sampierdarena
Mostra su mappa
Affiliato
Mgl Immobiliare Snc
Via Carlo Rolando, 10R 16151 Genova (GE)

2026 Tecnocasa Franchising S.p.A. - P. IVA 08365160152 - Via Monte Bianco 60/A 20089 Rozzano (MI). Ogni agenzia ha un proprio titolare ed è autonoma. Privacy policy | Policy utilizzo | Cookie policy